Beek en Donk - Glorius woningen
11 Duurzame sociale huurwoningen
11 Sociale huurwoningen volgens het woningbouwconcept De Gloriuswoning. De buitengevels zijn later gemaakt van Ecobricks die 35% minder grondstoffen bevatten dat standaard bakstenen. De woningen zijn voorzien van een ROEF-groendak, dit zorgt ervoor dat regenwater vertraagt afgevoerd wordt en verhoogt de biodiversiteit van de wijk.
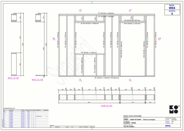
Voor dit project hebben wij de 11 woningen voorzien van zowel voor- als achtergevels in houtskeletbouw. Deze in totaal 44 HSB-elementen zijn gemaakt met geïntegreerde kozijnen.
Dankzij goed overleg vanaf de detailfase konden we ervoor zorgen dat veel van de in 3D uitgewerkte elementen meerdere keren in het model toegepast konden worden, wat de totale productie snelheid aanzienlijk heeft verhoogd en het proces verder gestroomlijnd heeft.






Architect: Archifit
Aannemer: Van Der Heijden Bouw
Contactgegevens
Bedrijfsgegevens
KvK
BTW
IBAN
E-mail
Telefoon
: info@argotek.nl
: 06-13534499
: 99470845
: NL005389765B45
: NL17 KNAB 0777 2641 88
